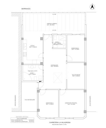
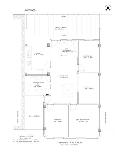
Levantamientos y mediciones

Levantamientos y mediciones interiores
Realizamos todo tipo de levantamientos en interiores de edificaciones para:
- Estado Actual para Proyectos.
- Apertura de Locales Comerciales
- Solicitudes de Vados
No dude en consultar sobre el tipo de levantamiento que necesite.

Levantamientos y mediciones interiores
Colaboramos con el Estudio "Topografía Guzmán" para la realización de todo tipo de encargos de levantamientos exteriores y otros tipos de servicios de Topografía.
- Medición de fincas, obras, parcelas y planos.
- Asistencia técnica en obras.
- Topografía industrial y obra civil.
- Direcciones y proyectos, obra nueva, rehabilitaciones, locales comerciales, gestión de licencias, periciales, informes, certificados, valoraciones, y gestión de obras.

Nube de Puntos
En colaboración con el Estudio "Topografía Guzmán", realizamos Nubes de Puntos 3D para la posterior realización tando de planos en CAD como modelado 3D con REVIT para la implantación de BIM.
Es especialmente interesante en Rehabilitaciones y Reformas en las que se tiene el modelo de la Nube de Puntos 3D para consultar en cualquier momento datos técnicos desde el despacho. De otra manera, deberían de comprobarse en obra con la consecuente perdida de tiempo.
Consulte presupuesto sin compromiso.
Colaborador habitual de INFO2L
Colaborador habitual de INFO2L

